Appartamento in Vendita
Fabriano - CAMPO SPORTIVO
Codice: 1173
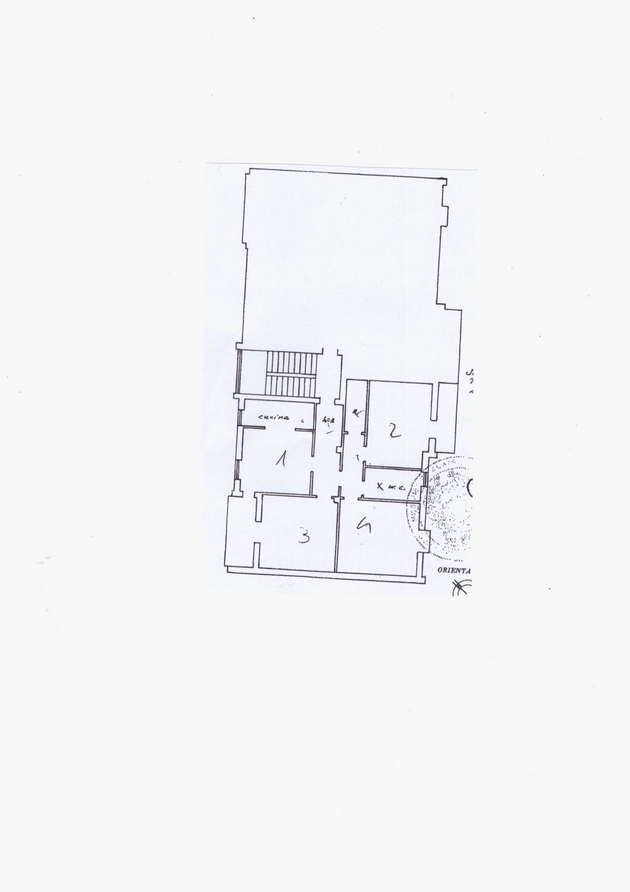
Fabriano: in zona semicentrale e servita, l'Agenzia immobiliare Sognocasa propone in Vendita spazioso Appartamento, da ristrutturare, composto da ingresso, cucina abitabile, salone, due camere, un bagno, ripostiglio, tre balconi.
Completano la proprietà garage e cantina.
Prezzo € 40.000 trattabili.
€ 40.000
Classe energetica
F
Informazioni immobile
Codice 1173
Contratto Vendita
Tipologia Appartamento
Regione Marche
Provincia Ancona
Comune Fabriano
Zona CAMPO SPORTIVO
Prezzo € 40.000 trattabili
Totale mq 85 mq
Camere 2
Bagni 1
Locali 4
Stato conservazione Da ristrutturare
Piano 4
Riscaldamento Autonomo
Disponibile Si
Balconi Presente
Cucina Abitabile
Box Singolo
Posizione Semicentrale
Caratteristiche
Ripostiglio
Copertura ADSL
Cantina
Nelle vicinanze
Palestre
Centri Benessere
Campi da Calcio
Complessi Sportivi
Campi da Tennis
Piste Ciclabili
Parchi Giochi
Stazione Ferroviaria
Trasporti Pubblici
Asilo
Scuole Elementari
Scuole Medie
Scuole Superiori
Bar
Uffici postali
Centri commerciali
Uffici comunali
Ubicazione immobile



